︎
PASCUAL – RIBAS
WORKS
PASCUAL – RIBAS
WORKS
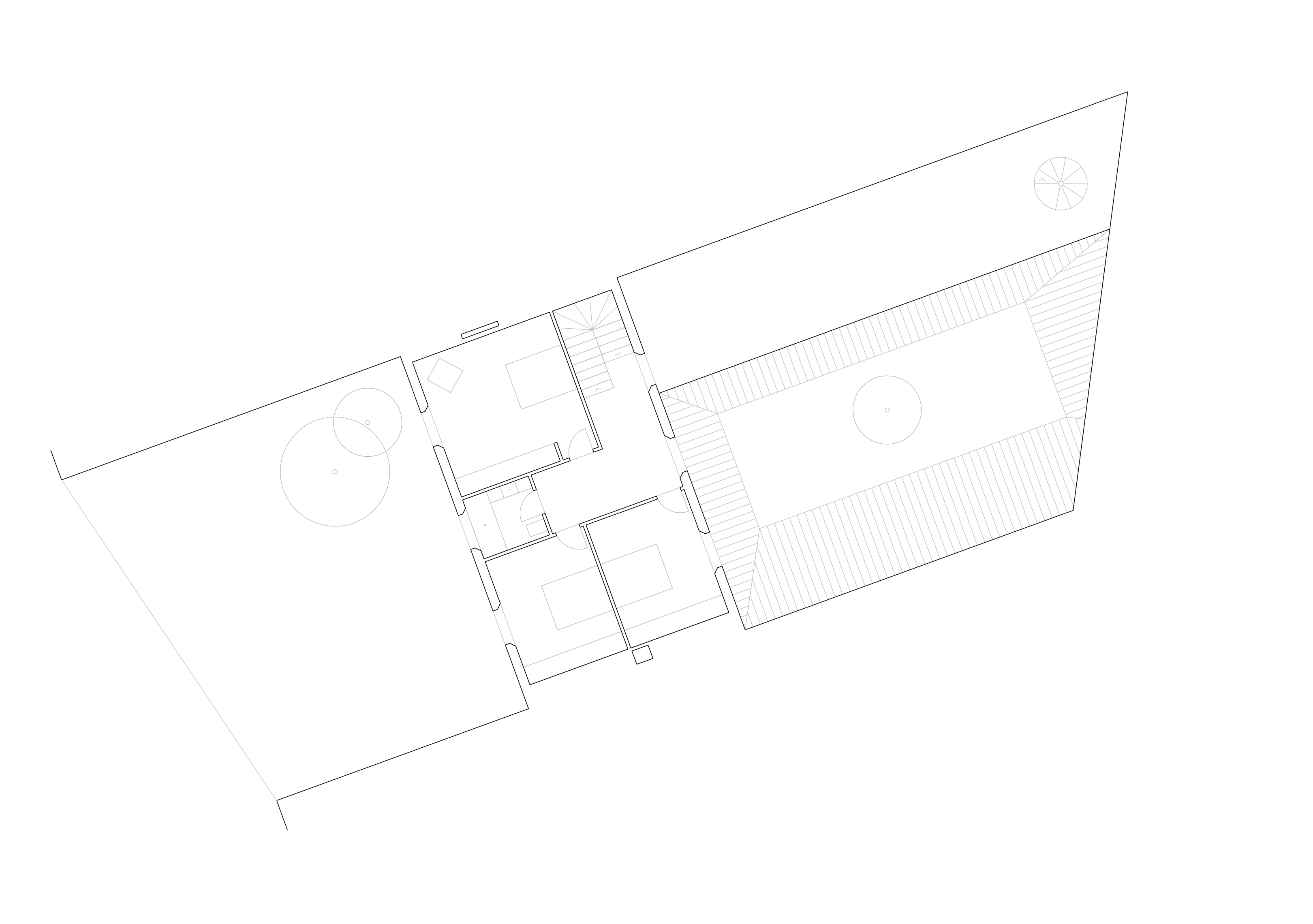
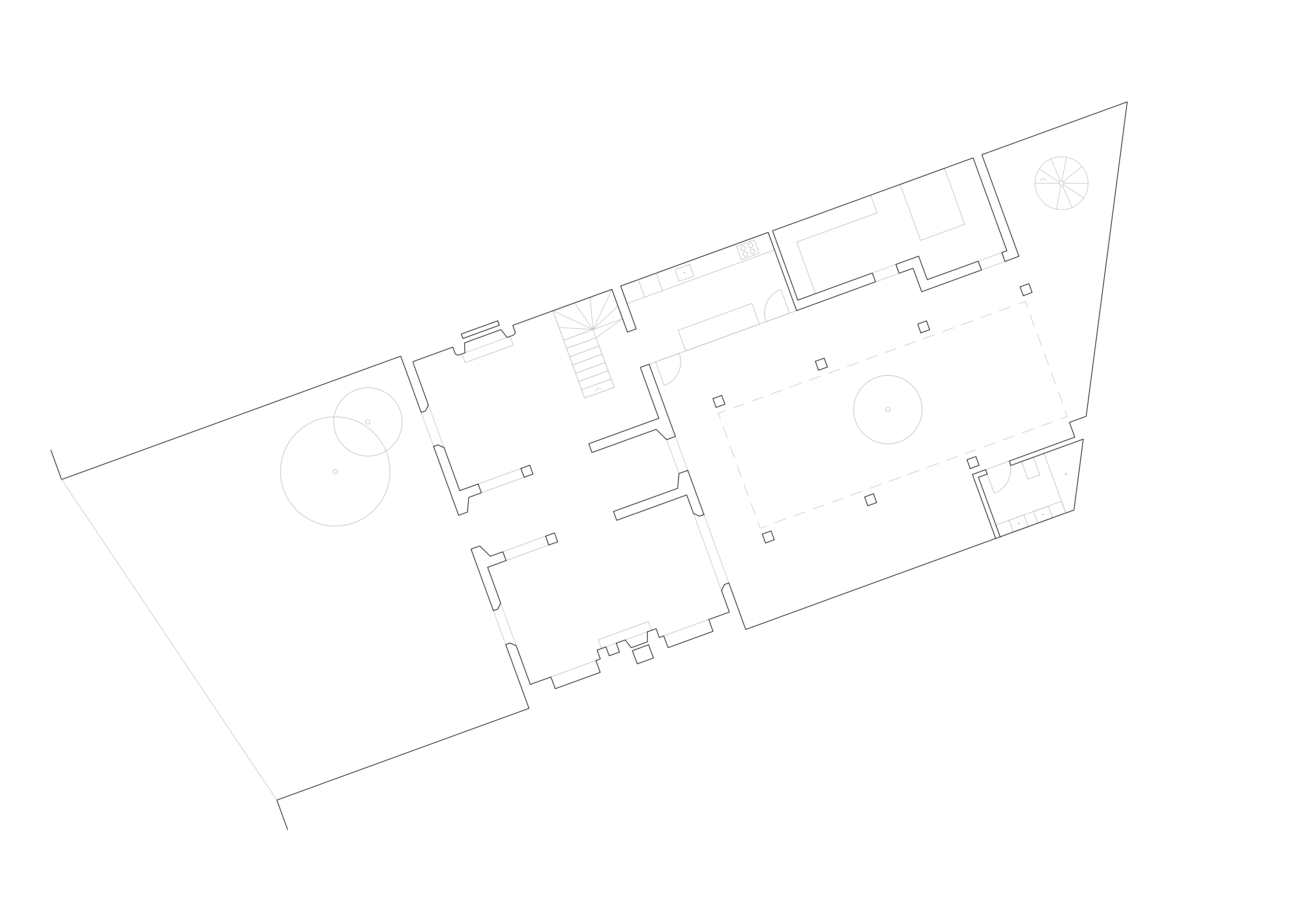
Casa Calella, 2019-2020
Photography: Eduard Sanchez Ribot